Casa OE

Casa OE

 

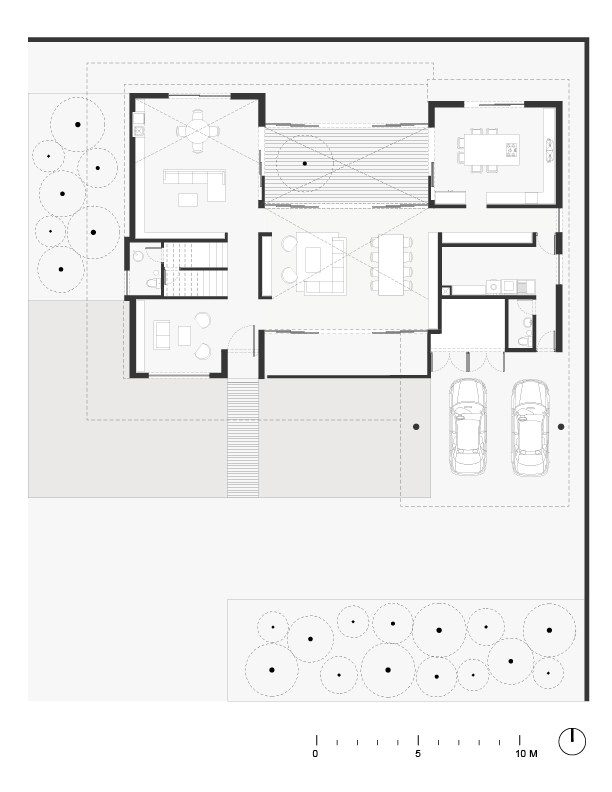
Localización

Chihuahua, Chih. Mx

Diseño

Arq. Pedro Cruz
Arq. Omar Guadarrama
Arq. Fausto Alvarado
Ing. Milton Camacho

Fecha

2015

Fotografía

Lic. Jonathan López

Área

510m²

Cliente

Privado